四柱液壓機是三梁四柱結構,它的優勢就是穩定性能好,噸位從100—2000噸,可根據用戶具體情況進行定做。設備占地面積小,但高度相對比較高,生產過程會出現搖晃的情況,如果不做基礎穩定就會影響設備性能,下面我們就簡單介紹如何做?
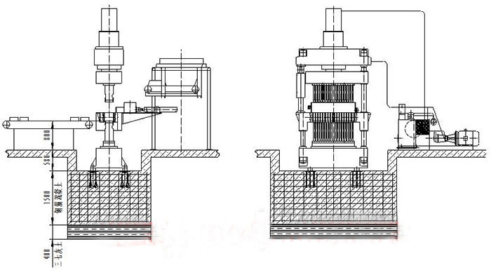
我們生產的四柱液壓機由兩種類型,一種是上壓式的,一種是雙面加壓的。上壓的出塊或出磚平臺高,需要下挖比較深的坑,而雙向加壓的出塊平臺要低很多,需要下挖2500mm就可以。坑的下部是400mm深的三七灰土,上部是1500mm高的鋼筋混凝土澆注,要用大于16的螺紋鋼網,可以保證基礎的強度,同時預埋件要盡可能與鋼筋網連起來。等設備運到后,地腳墊塊要焊牢在預埋件上,然后用地腳螺栓將四柱液壓機固定起來。
四柱液壓機主機固定好后,泵站、控制柜及其他輔機需放置在地面,地坪需要處理150—200mm厚,為了安全起見,地坑周圍需要加欄桿或鋪蓋板。
四柱液壓機地基需要提前處理,等混凝土凝固好后才能安裝設備。我公司一般會派專業安裝人員到貴公司指導做基礎、安裝調試設備。
河南省杜甫機械制造有限公司
公司地址:河南省鞏義市站街開發區
公司電話:0371-64422067
手機號碼:18624915999
公司郵箱:dufujx@foxmail.com
公司網址:http://www.gxmice.cn
手機版 備案號:豫ICP備12007906號-8